KLİMA SANTRALİ SEÇİM YAZILIMI HIZLI KULLANIM KLAVUZU
· Yazılım kurulumu yapıldıktan ve kullanıcı girişi yapıldıktan sonra

Yeni proje oluşturmak için yeni proje aç mevcut proje üzerinde işlem yapmak için proje aç linkleri kullanılır
Önemli not : sistem internet üzerinden çalıştığı için bağlantınızın kopması ihtimaline karşı her modül sonunda projeyi kaydetmeyi unutmayın
Örnek kullanımlar
** %100 taze havalı klima santrali seçimi (örnek1 ve genel anlatım)

Yeni proje aç linkine tıklanınca gelen proje özellikleri ekranından proje adı ve diğer proje bilgileri girilmelidir
Proje adı zorunludur diğer bilgiler doldurulur ise yazılım alınan çıktılarda bu alanlardaki bilgileri kullanır.

Proje durumu belirlenmesi unutulmamalıdır.

Projede birden fazla santral var ise proje ön değerleri kullanılarak modüllerin istenilen özelliklerde gelmesi sağlanabilir.

Yazılımda aksesuarlar modüllere eklenebildiği için uygulamada aksesuar ekleme işlemini modüllere yapmak daha uygun olacaktır.

Proje bilgileri tamamlanıp tamam butonu ile kabul edildiğinde sol menüde proje adını gösteren link görünür.

Üst proje menüsündeki + butonuna basılarak santral ekleme işlemi yapılır

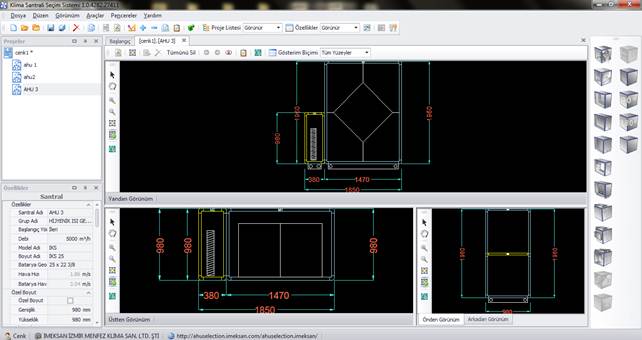
Gelen santral özelikleri penceresinden santralimizin adı ve diğer özellikleri belirlenir

Grup adı başlığı altından santral grubu belirlenir
Debisi unutulmamalıdır.
İzolasyon kalınlığı unutulmamalıdır.
Çatı ve diğer özellikler belirlenmelidir.
Diğer alanlardan santralin genel özellikleri girilir.
Bağlantı ağzı genel uygulamada emiş ve atış için bağlantı tipi flanş olarak seçilir.

Tamam tuşuna basıldıktan sonra santral tasarım ekranı gelir.

Sağ taraftaki kutucuklardan ilgili santral hücreleri oluşturulur
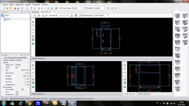
Tek damperli emiş modülü :

Emiş modülü eklenir.
Damper bağlantı tipi, damper yeri,servis kapsısı,aksesuarları seçilir. Genel kullanım olarak bağlantı tipi flanş seçilir.

Tamamlandığında üstteki gibi tasarım ekranımızda modül çizimi oluşmuştur
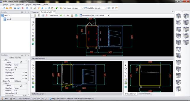
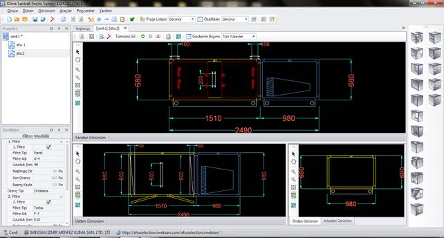
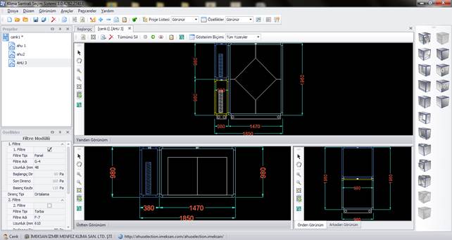
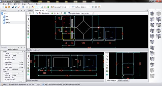
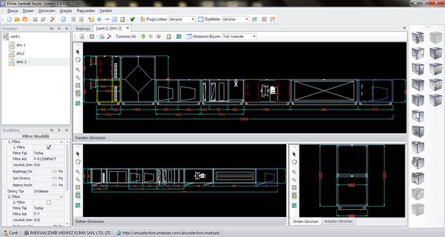
Filtre modülü:

Filtre hücresi eklemek için sağdaki modül menüsünden filtre modülü seçilince tasarım ekranında eklenecek modülün hangi noktaya ekleneceğini gösteren seçim noktaları çıkar mevcut modülün hangi tarafına ekleme yapılacak ise o taraftaki seçim noktası mouse ile tıklanarak seçilir.

Sağdaki modül menüsü tıklanınca genel ekran görünümü üstteki gibidir.

Filtre modülü seçildiğinde genel ekran görünümü yukarıdaki gibidir.

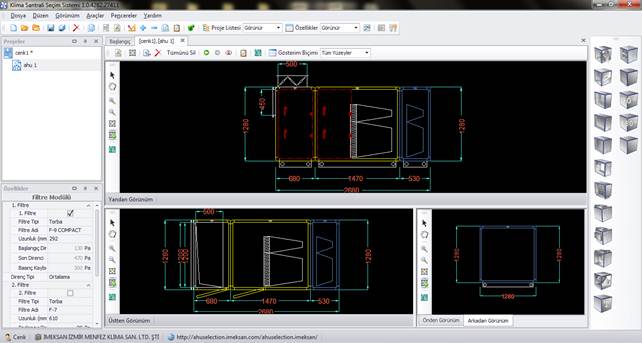
Sadece kaba filtre varsa ikinci filtre kısmı iptal edilir. Eğer ikinci bir filtre varsa secimi yapılır.
Eğer üçüncü bir filtre var ise tekrar filtre modülüne tıklanarak yeni hücre eklenir. Aynı işlemler tekrarlanır. 1. Filtre kısmında torba yada kompakt ne seçim yapılacaksa seçilir.
Servis kapısı eklenir. Modüle aksesuar ilave edilecekse aksesuarlar kısmından seçilerek ilave edilir.

Filtre modülü eklendiğinde ekran görüntüsü yukarıdaki gibidir.

Kompakt filtreler torba filtreler başlığı altından eklenir.
Önce uzunluk seçilir. Sonra tip seçilir.

Filtre modülleri eklendiğinde ekran görüntüsü yukarıdaki gibidir
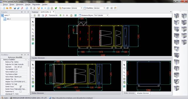
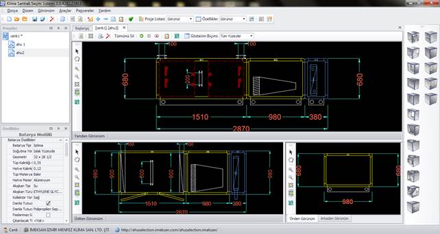
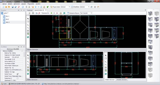
Isıtıcı batarya modülü :

Isıtıcı batarya hücresi eklenmesi

İlgili modül ve ekleneceği yer seçildikten sonra gelen pencerede hava şartları, bağıl nem oranları, oluşması istenilen koşullar girilir. Karışım oranı belirlenir. Eğer santralimiz %100 taze havalı ise dış hava şartının altındaki hücreye 100 iç havanın altındaki hücreye 0 girilir. Eğer karışım havalı klima santrali ise karışım oranları girilir.
Isıtıcı akışkan giriş çıkış koşulları belirlenir.
Hatve aralığı seçimi yapılır. ( 2,1-4 arası )
Batarya için istenilen sıcaklık aralığı veya kapasite aralığı girilir. ( mesela 20-25 ˚c , 50-60 kw )
Varsa istenilen maksimum basınç kaybına göre basınç kayıpları da girilir.

Üstte resimde kapasite aralığına göre bataryalar çıkmıştır. Bu durumda istenilen koşulları oluşturan batarya seçilir.

İstenirse sıcaklık aralığına göre de batarya seçimi yapılabilir.
Uygun batarya seçilir.

İlave aksesuarlar var ise seçilerek modüle ilave edilir.

Tamam tuşuna basarak batarya seçimi ile batarya modülü bitirilir.

Batarya modülü tamamlandığında genel ekran görüntüsü yukarıdaki gibidir.
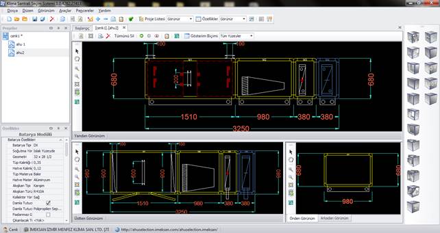
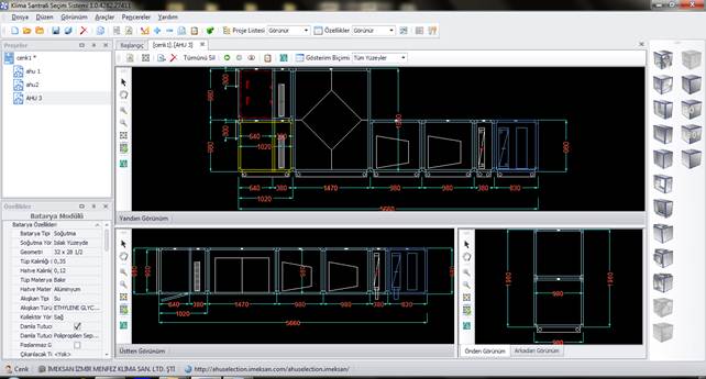
Soğutucu batarya modülü:

Soğutucu batarya modülü seçimi yapıldığında yukarıdaki ekran görüntüsü gelir

Dış hava koşulları girilir. Karışım oranı girilir. Hatve aralığı seçilir. Min mak sıra sayısı seçilir.
Uygun batarya seçildikten sonra aksesuarlarda seçilir. Daha sonrasında modül tamamlanmış olur.
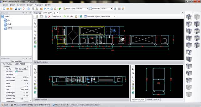
Fan modülü:

Fan seçimi genel ekran görüntüsü yukarıdaki gibidir

Modüle çift tıklandıktan sonra açılan seçim penceresinde sırayla gerekli bilgiler girilir;
Dış basınç kaybı girilir.
İstenilen atış ağzı hızı varsa onlar girilir.
Fan tipi seçilir
Fan adedi
İsteniyorsa frekans dönüştürücü
Fan için izolasyon tipi seçilir. ( titreşim önlemek için kullanılan yay veya plastik takozlar )
Önemli not:

Örnek seçim ekranı yukarıdaki gibidir

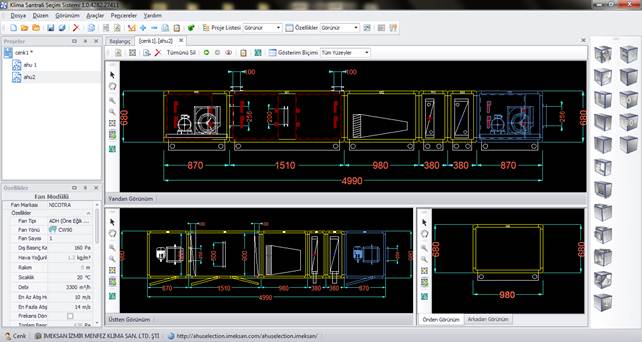
Fan modülü eklendikten sonra proje görünümü yukarıdaki gibidir.
Proje kaydedildikten sonra
Teknik çıktı: ( düzen / teklif çıktısı başlığından yazdırılabilir) üst barlarda kısa yolları mevcuttur
Fiyat bilgisi: (düzen /üretim başlığından alınabilir.) Üst barlarda kısa yolları mevcuttur.
Karışım havalı klima santrali seçimi (örnek 2)
Proje ve santral oluşturulur.

Önce karışım hücresi seçilir. Üç damperli karışım modülü.

Modül seçildikten sonra gelen ekranda karışım oranında debiler girilir.
Bağlantı şeklileri isteğe göre belirlenir.
Damperlerdeki basınç kayıpları girilir.

Karışım hücresi eklendikten sonra ekran görüntüsü yukarıdaki gibidir.
Filtre modülü

Filtre modülü girilir. İsteniyorsa kaba filtreden sonra ikinci filtre tipi seçilir.

Isıtıcı batarya modülü

Isıtıcı serpantin eklemek için modüle tıklanır ve gerekli bilgiler girilir.
Batarya tipi ( gerekiyorsa ) , dış hava değerleri, iç hava değerleri, karışım oranları, batarya hatve aralığı, sıra sayısı, sıcaklık yada kapasite aralığı…
Batarya seçimi uzun sürebilir hatve aralığını daraltır iseniz hızlı seçim yapabilirsiniz.

Isıtıcı batarya eklendikten sonra ekran görüntüsü yukarıdaki gibidir.
Soğutucu batarya modülü

Uygun batarya modülü seçildikten sonra soğutucu bataryaya geçilir. Bu örnekte dx batarya kullanıcağız. Dx batarya seçmek için soğutucu batarya modülüne tıkladıktan sonra batarya tipi olarak dx seçlir.akışkana tipi karışım, akışkan türü r410a seçilir. Hava giriş değerleri girilir. Daha sonra akışkan değerleri girilir. Buharlaşma sıcaklığı 7˚ c, yoğunlaşma sıcaklığı 50˚ c, sub cooling degree 5˚ c ve overheating 5 ˚ c yazılır.
Bataryayı daha hızlı seçmek için hatve aralığı daraltılır. (2,1-2,1 gibi )
Sıra sayısı içinde aralık daraltılır. ( 6-6 gibi )

Dx batarya oluşturulur. İlk tercihlerde istenilen değerlere ulaşılamaz ise hatve aralığı ve sıra sayısı değiştirilerek istenilen değerlere yaklaşılır.
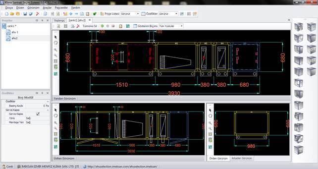
Boş hücre eklemek için boş hücre modülüne tıklanır ve istenilen boyutlarda boş hücre eklenir.

Hücre boyu 150mm nin katları olmak zorundadır.
Eğer servis kapısı isteniyorsa min 600mm olur.

Hücre silmek için silmek istediğiniz hücreye tıklayıp delete tuşuna basmanız yeterli olacaktır.

Vantilatör ve aspiratör seçimi yapılır.
Aspiratör için modüle basıldıktan sonra eklenmek istenen hücrenin yanındaki seçim noktasına basılarak konumlandırılır.
Isı geri kazanımlı hijyenik klima santrali seçimi (örnek 4)

Proje ve santral oluşturulur.
Santral oluşturulurken grup adı seçilir. İç saç paslanmaz 316 olarak seçilir. Dış sac boyalı galvaniz olarak seçilir.

Santral oluşturulduktan sonra sırayla hücreler oluşturulur.
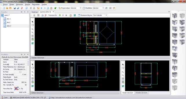
Plakalı ısı geri kazanım modülü

Önce plakalı ısı geri kazanım modülü eklenir.
Yerleşim dikey olarak seçilir.
Seri seçilir. ( reküpratör tipi mesela benim anladığım 600lük 700lük gibi )
By pass damperi varsa işaretlenir ve by pass genişliği girilir.
Kış ve yaz için taze hava ve egzost hava koşulları girilir.
Sonra seç butonundan uygun plakalı eşanjör seçilir.
Önemli : seçilen plakalı eşanjör fiyatı güncellenerek fiyat kısmına girilir.
Plaklı eşanjör seçildikten sonra tamam butonuna basılarak işlem tamamlanır.

Plakalı eşanjör görünümü yukarıdaki gibidir.
Sonrasında
Santralin sağındaki ve solundaki hücreler gerekli sıralanış ve tertipte sırayla seçilmeye başlanır.

Biz önce solundaki hücreleri oluşturacağız.
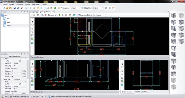
Filtre modülü

Taze hava ve egzost için filtre modülleri eklenir.

Aradaki çift atkıyı kaldırmak için hücreler birleştirilebilir. Bu maliyeti imkanlar dahilinde biraz daha düşürecektir. Mümkün olduğunca çok fazla hücre birleştirilmemelidir. Birleştirme işlemi şöyle olur. Filtre modülü seçildikten sonra santral menü çubuğundan birleştir butonu seçilir birleştirme noktası tıklanır ve işlem gerçekleşir.

Daha sonra sağdan ilk hücre eklenir.

Modül oluşturulduktan sonra varsa ikinci seçilir.

Filtre modülü oluşturulduktan sonra genel görünümü.
Isıtıcı batarya ekleme :
ısıtıcı batarya değerleri girilirken giriş hava koşulları plakalı eşanjörden çıkan hava koşulları olmalıdır.,(kış koşulları)

Plakalı ısı geri kazanım kış değerleri örnek görünüm

Isıtıcı batarya giriş değerleri örnek görünüm

Isıtıcı batarya eklenmiş genel görünüm
Soğutucu batarya modülü
Soğutucu batarya değerleri girilirken giriş hava koşulları plakalı eşanjörden çıkan hava koşulları olmalıdır. (yaz)

Plakalı ısı geri kazanım yaz koşulları örnek görünüm

Soğutucu batarya giriş genel görünüm

Soğutucu batarya eklendikten sonra genel görünüm
Buharlı nemlendirici
İsteğe bağlı olarak soğutucu batarya eklendikten sonra buharlı nemlendirici konabilir.

Kapasite biliniyorsa kapasite hesapla tiki kaldırılarak direk kapasite girilir. Kapasite bilinmiyosa giriş ve çıkış koşulları girilir.

Buharlı nemlendiriciden sonra fan modülü seçilir. ( plug fan olduğu için pfn seçilir. )

Fan modülü ekleme ekranı yukarıdaki gibidir.

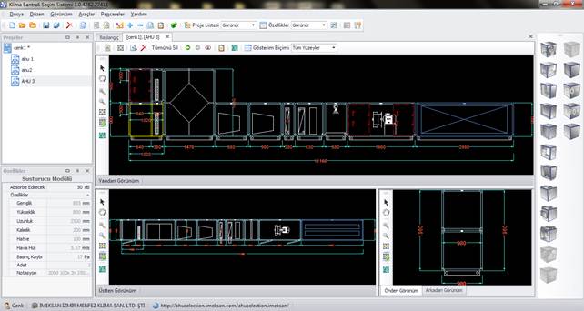
Fanımızıda ekledikten sonra susturucu ekleyebiliriz.

Absorbe edilecek ses miktarına göre susturucu belirlenir. Program otomatik uygun susturucuyu seç dediğiniz zaman getirmektedir.

Susturucu eklendikten sonra tasarım görüntüsü yukarıdaki gibidir.
F9 kompakt

Son olarak f9 kompakt filtre ekleyelim.

Şimdi egzost havası için susuturucu ekleyelim. ( isteğe bağlı )

Daha sonra egzost aspiratörü seçimi yapılır ve santralimiz tamamlanmış olur.
Projeyi kaydedip çıktılarımızı alabiliriz
Tamburlu ısı geri kazanımlı klima santrali seçimi : (detay)
Proje ve santral oluşturulduktan sonra ilk olarak tambur modülü seçilir.

Uygun tambur modülü için gerekli özellikler girildikten sonra hesapla kısmından tambur seçilebilir. Kasa içerisine sığmadığı için uyarı ekranı çıkabilir. Bu durumlarda sol taraftan santral adına sağ mouse tuşuyla tıklanarak santral özelliklerine girilip kasa istenilen boyutlarda büyütülür.
Hesapla butonuna tıklandıktan sonra aşağıdaki hata ekranı geldiğinde kasa değiştirilecektir. Mümkün olduğu kadar küçük hatve de minumum basınç kaybında eşanjör seçmeye çalışmalıyız.

Uygun kasa tipi ve eşanjör seçildikten sonra tamama basılarak işlem tamamlanır.

Önemli : tambur fiyatını güncelliyip eklemeyi unutmayın.
Ek bilgiler
![]()
Birleştirme butonu ile santral içerisinde birleştirmek istediğimiz modülleri birleştirirebilir
Veya daha önceden yaptığımız birleştirmeleri iptal edebiliriz

Örnek santral birleştirme butonuna basmadan önce

Birleştirme butonuna bastığımızda hangi noktalarda birleştirme yapacağımızı belirlememiz gerekir

2 noktası birleştirilmiş ekran görüntüsü yukarıdaki gibidir.

Tekrar birleştirme butonuna bastığımızda ayırma işlemini hangi noktalardan yapabileceğimizi gösteren seçenekler gelir üstteki gibi

Daha önceden birleştirdiğimiz modüllerin ayrılmış hali yukarıdaki gibidir.

Hücre kaydırma butonları

Seçili hücreyi sağa veya sola kaydırmak için kullanılabilir

Seçili hücre 1 sağa kaydırılmıştır görünüş üstteki gibidir.
Hava yönünün belirlenmesi

Santral özelliklerinde hava yönün düz seçilmiş hali üstteki gibidir.

Normalde santral özelliklerinde hava yönü düz seçili iken fan çizimi üstteki gibidir.

Santral özelliklerinden hava yönü ters seçilmiş hali üstteki gibidir.

Santral özelliklerinden hava yönü ters seçildiğinde fan çizimi yukarıdaki gibi olur.
Isı geri kazanımlı santralde çapraz akım


Isı geri kazanımlı santralde çapraz akım

Santral hava yönü ve emiş bağlantı tipi

Santral hava yönü ve atış bağlantı tipi

Isı geri kazanım emiş bağlantı tipi

Isı geri kazanım atış bağlantı tipi

Tasarım son hali
Santral özellikleri diğer kısmı kullanımı

Aynı özellikte birden fazla santral varsa adedi buradan değiştirilebilir isteğe bağlı rakım ve hava yoğunluğu atmosfer basıncı tasarım sıcaklığı değerleri burdan değiştirilebilir.

Hesaplama yapıldıktan sonra